Об'єкти

Будівництво Інженерне обладнання Рейковий транспорт Готель"Hilton", Київ ТРЦ "Gulliver", Київ Залізнична лінія Rhaetian Railway, Швейцарія Офісний комплекс "IQ Business Center", Київ ТРЦ "Respublika", Київ Метро District Line, Лондон Бізнес-центр "Парус", Київ Готель"Fairmont Grand Hotel", Київ Залізнична лінія Berlin-Cottbus, Німеччина Студія звукозапису "Freestyle" Анатолія Розанова, Полтава Бізнес-центр "101 Tower", Київ Залізничний тунель Brenner Base Tunnel, Австрія-Італія Телекомпанія "Новий канал", Київ Готель "Fairmont Grand Hotel", Київ Метро East London Line, Лондон Житловий комплекс "На Зверинецькій", Київ Житловий комплекс "На Ольшанській", Київ Бізнес-центр "Міленіум", Київ Житловий комплекс "Crystal Park", Київ Panorama Towers, Мюнхен Житловий комплекс The Touraine, Нью-Йорк Телекомпанія "1+1", Київ The Rushmore Building, Нью-Йорк Житловий комплекс "Four Suns", Москва

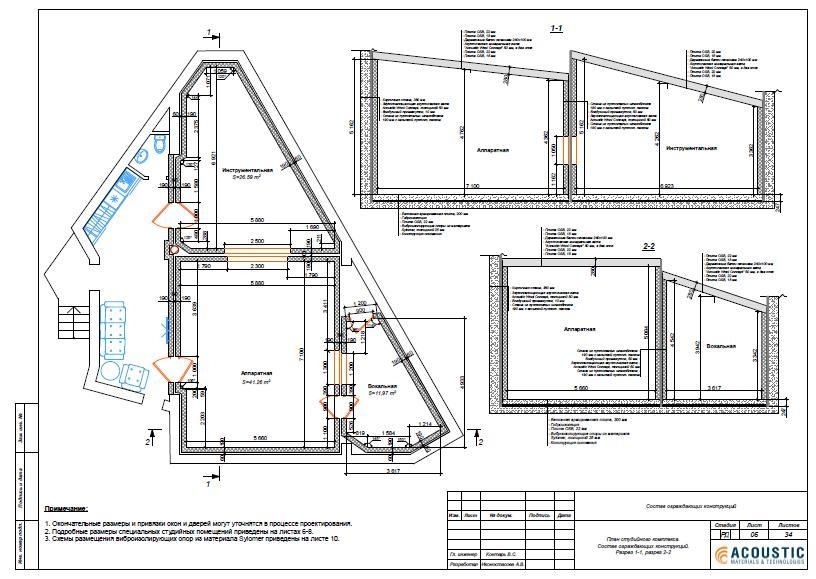
Студія звукозапису "Freestyle" Анатолія Розанова, Полтава

Расположение — г. Полтава
Проектное бюро: 

Acoustic Project - Защита от шума, акустика помещений

Общая площадь — 260 м. кв 

Проектирование — 2012 г.


Строительная физика:

 

-виброизоляция студийных помещений "box in box";

-виброизоляция агрегатов системы вентиляции;

-виброизоляция системы кондиционирования воздуха;

-мероприятия по снижению шума инженерного оборудования;

-проведение комплекса натурных виброакустических измерений